- トップ
- 新築一戸建てをエリアから探す
- 大野城市
- 川久保
- クレイドルガーデン川久保第5
新築一戸建て
クレイドルガーデン川久保第5
情報更新日:2026/05/25 次回更新予定日:2026/06/08
所在地福岡県大野城市川久保3丁目14[周辺地図]
交 通西鉄天神大牟田線「桜並木」駅バス11分 停歩4分






【物件特徴】
・オール電化物件
・南側道路で陽当たり良好
・天候に左右されないインナーバルコニー
・防犯対策バッチリ(防犯カメラ・TVモニター付きインターホン・全居室ペアガラス)
・WIC
・オール電化物件
・南側道路で陽当たり良好
・天候に左右されないインナーバルコニー
・防犯対策バッチリ(防犯カメラ・TVモニター付きインターホン・全居室ペアガラス)
・WIC
物件詳細情報
物件No.20000443986
| 所在地 | 福岡県大野城市川久保3丁目14 | ||
|---|---|---|---|
| 交通 | 西鉄天神大牟田線「桜並木」駅バス11分 バス停「変電所前」停歩4分 | ||
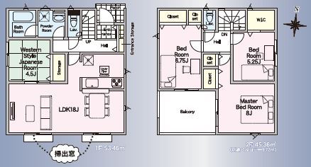
| 間取 | 4LDK (和室4.5帖、洋室6.75帖、洋室5.25帖、洋室8帖) | ||
| 土地面積 | 163.59m² 公簿 | ||
| 建物面積 | 98.82m² | ||
| 総戸数 | 全1戸 | 構造・規模 | 木造建て |
| 築年・入居 | 2026年5月下旬 | バルコニー | 南向き |
| 建物現況 | 建築中 | 建築確認番号 | 第R07SHC124793号 |
| 駐車スペース | 3台(並列) | 引渡時期 | 相談 |
| 施工会社 | (株)アーネストワン | 地目 | 宅地 |
| 用途地域 | 第二種中高層住居専用地域 | 建ぺい率 | 50% |
| 容積率 | 150% | 都市計画 | 市街化区域 |
| 権利種類 | 所有権 | 接道 | 北側5.99M公道に9.74M接道 |
| 小学校区 | 大野東小学校 | 中学校区 | 大野東中学校 |
| 取引態様 | 一般 | ||
| 設備 | 公営水道、本下水、オール電化 | ||
こだわり項目
平坦地閑静な住宅地LDK15帖以上耐震構造制震構造免震構造南庭庭床下収納全居室収納2面以上バルコニー複層ガラス耐震適合設計住宅性能評価付建設住宅性能評価付(新築時)IHクッキングヒーターカウンターキッチントイレ2ヶ所温水洗浄便座シャワー付洗面台浴室乾燥機浴室暖房追焚機能浴室1坪以上浴室に窓ウォークインクローゼットTVモニタ付インターホンスマートキー防犯カメラ24時間換気システム小学校800m以内フラット35Sに対応フラット35・S適合証明書
- ※価格は物件の代金総額を表示しており、消費税が課税される場合は税込み価格です。(1,000円未満は切り上げ。)
税率は引き渡し時期により異なりますので、各物件の詳細につきましてはお問い合わせください。 - ※敷地権利が借地権のものは価格に権利金を含みます。
- ※制作中に内容が変更される場合もありますので、あらかじめご了承ください。
- ※購入の前には物件内容や契約条件についてご自身で十分な確認をしていただくようにお願いいたします。
- ※完成予想図はいずれも外構、植栽、外観等実際のものとは多少異なることがあります。
- ※CG合成の画像の場合、実際とは多少異なる場合があります。
周辺地図
周辺施設一覧
- ショッピングセンター
- スーパー
- コンビニ
- ドラッグストア
- ホームセンター
- 飲食店
- その他店舗
- 商店街
- 大学
- 専門学校
- 高校・高専
- 中学校
- 小学校
- 保育園
- 幼稚園
- 公民館・児童館
- 病院
- 郵便局
- 役所
- 図書館
- 金融機関
- 警察・消防
- 趣味・娯楽施設
- 公園・運動施設
- 周辺の街並み
- 駅
- その他
お問い合せ先
- 株式会社ハウス・ツーリスト 博多店
- お電話でのお問い合わせは
092-710-4575「ホームページを見た」とお問い合わせください - 福岡県福岡市博多区豊1-3-8
- 営業時間:9:00~19:00
- 定休日:不定休
- 免許番号:国土交通大臣(2)第9276号
- トップ
- 新築一戸建てをエリアから探す
- 大野城市
- 川久保
- クレイドルガーデン川久保第5





















