- トップ
- 新築一戸建てをエリアから探す
- 福岡市南区
- 若久
- 福岡市南区若久6丁目全2棟の新築一戸建て
新築一戸建て

福岡市南区若久6丁目全2棟の新築一戸建て
情報更新日:2026/01/16 次回更新予定日:2026/01/30
所在地福岡県福岡市南区若久6丁目[周辺地図]
交 通鹿児島本線「博多」駅バス30分 停歩6分





☆☆☆期間限定キャンペーン実施☆☆☆ 仲介時の手数料減額します!!!!
【住宅ローンの事前審査にお申込みで1万円分のアマギフカード進呈!(諸条件あり)】
さらにご成約いただいたお客様に選べる特典プレゼント◎
詳しくは、備考欄のプレゼント情報をチェック!
\憧れのマイホーム☆月々のお支払い 8万円台~/
■趣味の部屋、お子さまの遊び場、そして広い庭も。67坪の余白が、暮らしを変える。
■「ゆとり設計×機能美」動線も収納も計算された、ストレスフリーな毎日へ。
■ぬくもりと涼しさを未来へ届けるZEH水準の家
■こだわりのインテリアが映えるデザイン仕様
■西鉄バス「若久」停 徒歩6分
■天神も博多も一直線!都心とつながる軽快ポジション☆
■ローンのお悩み・ご相談も承ります
【住宅ローンの事前審査にお申込みで1万円分のアマギフカード進呈!(諸条件あり)】
さらにご成約いただいたお客様に選べる特典プレゼント◎
詳しくは、備考欄のプレゼント情報をチェック!
\憧れのマイホーム☆月々のお支払い 8万円台~/
■趣味の部屋、お子さまの遊び場、そして広い庭も。67坪の余白が、暮らしを変える。
■「ゆとり設計×機能美」動線も収納も計算された、ストレスフリーな毎日へ。
■ぬくもりと涼しさを未来へ届けるZEH水準の家
■こだわりのインテリアが映えるデザイン仕様
■西鉄バス「若久」停 徒歩6分
■天神も博多も一直線!都心とつながる軽快ポジション☆
■ローンのお悩み・ご相談も承ります
担当スタッフより

- 井原 孝
- 落ち着いた街並みに包まれて、心地よく暮らせる若久6丁目。低層住宅が並ぶ静かなエリアで、のびのびとした毎日を。スーパーや病院・公園も身近で、子育てにもやさしい環境です。お気軽にお問い合わせください♪お客様のご希望に沿ったものは何かを考え、お客様に合った『最善の物件』を提案できるよう日々奮闘中です!
物件詳細情報
物件No.31020266047
| 所在地 | 福岡県福岡市南区若久6丁目 | ||
|---|---|---|---|
| 交通 | 鹿児島本線「博多」駅バス30分 バス停「若久」停歩6分 西鉄天神大牟田線「大橋」駅バス22分 バス停「若久」停歩6分 西鉄天神大牟田線「高宮」駅徒歩30分 |
||
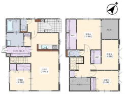
| 間取 | 4LDK | ||
| 土地面積 | 223.72m² | ||
| 建物面積 | 113.73m² | ||
| 販売戸数 | 1戸 | 総戸数 | 全2戸 |
| 構造・規模 | 木造 2階建て | 築年・入居 | 2025年12月 |
| 建物現況 | 建築中 | 駐車スペース | 2台(カースペース) |
| 引渡時期 | 期日指定有(2025年12月下旬) | 用途地域 | 第一種低層住居専用地域 |
| 建ぺい率 | 50% | 容積率 | 80% |
| 権利種類 | 所有権 | 接道 | 北東側4.4M道路に接道 |
| 小学校区 | 福岡市立東若久小学校(650m) | 中学校区 | 福岡市立筑紫丘中学校(1800m) |
| 取引態様 | 媒介 | ||
| 設備 | 公営水道、本下水、都市ガス | ||
| 省エネ性能表示 | エネルギー消費性能:★★★★ 断熱性能:5段階 目安光熱費:約17.8万円/年 |
||
| その他制限事項 | 高さ最高限度有、隅切り有 | ||
| 備考・制限等 | ■ギフト券プレゼント 住宅ローンの事前審査にお申込みで1万円分のアマギフカードを進呈♪ ※ご来場時にアンケートにご記入の方(一世帯1回限り) ■選べるご成約特典 ご成約のお客様には 下記商品からお好きなものをお選びいただけます! A網戸(開閉窓全て) B1階リビングシャッター(1箇所)※既に設置済みの物件もございます Cアマギフカード10万円分進呈 ※弊社指定商品 |
||
こだわり項目
緑豊かな住宅地閑静な住宅地地盤調査済LDK15帖以上省エネ・エコ住宅BELS/省エネ基準適合(認定書あり)南庭庭床下収納全居室収納2面以上バルコニー複層ガラス食器洗浄機浄水器ガスコンロシステムキッチンカウンターキッチン3口以上コンロパントリー(食器・食品の収納庫)トイレ2ヶ所温水洗浄便座シャワー付洗面台浴室乾燥機追焚機能浴室1坪以上オートバス全居室フローリングリビング階段ウォークインクローゼットTVモニタ付インターホンスマートキー24時間換気システム小学校800m以内保育園・幼稚園800m以内スーパー400m以内公園800m以内陽当り良好通風良好フラット35Sに対応
- ※価格は物件の代金総額を表示しており、消費税が課税される場合は税込み価格です。(1,000円未満は切り上げ。)
税率は引き渡し時期により異なりますので、各物件の詳細につきましてはお問い合わせください。 - ※敷地権利が借地権のものは価格に権利金を含みます。
- ※制作中に内容が変更される場合もありますので、あらかじめご了承ください。
- ※購入の前には物件内容や契約条件についてご自身で十分な確認をしていただくようにお願いいたします。
- ※完成予想図はいずれも外構、植栽、外観等実際のものとは多少異なることがあります。
- ※CG合成の画像の場合、実際とは多少異なる場合があります。
周辺地図
周辺施設一覧
- ショッピングセンター
- スーパー
- コンビニ
- ドラッグストア
- ホームセンター
- 飲食店
- その他店舗
- 商店街
- 大学
- 専門学校
- 高校・高専
- 中学校
- 小学校
- 保育園
- 幼稚園
- 公民館・児童館
- 病院
- 郵便局
- 役所
- 図書館
- 金融機関
- 警察・消防
- 趣味・娯楽施設
- 公園・運動施設
- 周辺の街並み
- 駅
- その他
お問い合せ先
- 株式会社ハウス・ツーリスト 博多店
- お電話でのお問い合わせは
092-710-4575「ホームページを見た」とお問い合わせください - 福岡県福岡市博多区豊1-3-8
- 営業時間:9:00~19:00
- 定休日:不定休
- 免許番号:国土交通大臣(2)第9276号
- トップ
- 新築一戸建てをエリアから探す
- 福岡市南区
- 若久
- 福岡市南区若久6丁目全2棟の新築一戸建て






